# Salzelmen | Wandmalerei Börde

Bad Salzelmen

Ehemaliges Terminierhaus, Kirchstraße 3

Das Gebäude

Baubeschreibung

Das Terminierhaus liegt im Kern der Kleinstadt Bad Salzelmen, die seit 1932 als Stadtteil zur Stadt Schönebeck gehört. Nordwestlich gegenüber der Stadtgemeindekirche St. Johannis steht in der Kirchstraße 3 ein zweistöckiges, rechteckiges Gebäude, das ehemalige Terminierhaus der Augustiner-Eremiten (Abb. 01). Ein Terminierhaus war eine Art Sammelstelle für Almosen, Spenden und Erbetteltes. Diese Fiale der Augustiner-Eremiten diente vermutlich nicht zuletzt auch der Seelsorge. Das traufständige Gebäude besteht aus zwei Geschossen. Die Umfassungsmauern vom Erdgeschoss wurden überwiegend aus Bruchsteinmauerwerk gefertigt. Die Blendnischen der Giebelfassaden sind aus Backstein gestaltet worden, teilweise mit glasierten Oberflächen aus üblichen Klosterformatsteinen.¹ Das Obergeschoss der Straßenseite wurde in Fachwerk errichtet.

Im Nordosten des Gebäudes befindet sich ein Tonnengewölbe, das den Bau heute zum Hof hin abschließt und aus einem Vorgängerbau stammen könnte. Der tonnengewölbte, höher liegende Raum ist vom Erdgeschossaus aus über acht Stufen zu erreichen.²  Einige Räume im Erdgeschoß nutzt eine Firma als Büros und als zu Lager. Das übrige Gebäude ist zu Wohnzwecken vermietet.

Sal_Abb_01

Ansicht des Gebäudes Kirchstraße 3 von Süden

Bauphasen und Umbauzeiten

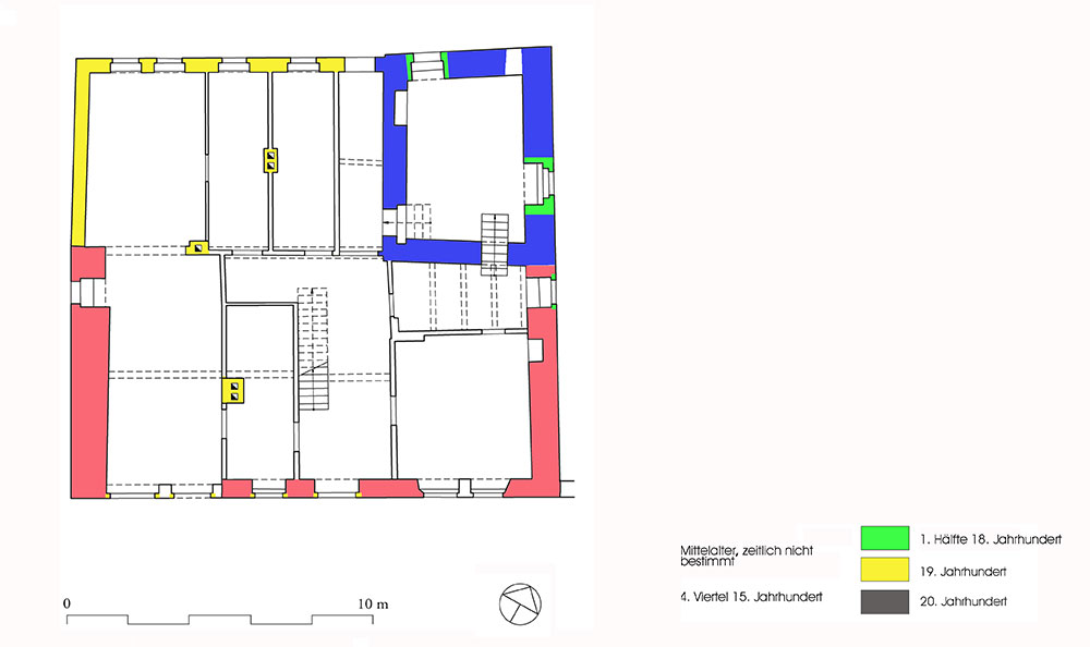
Die Giebelwände mit der äußerlichen Backsteinzier wie auch ein großer Teil des Mauerwerks der Umfassungsmauern stammen wohl noch aus der Umbauphase des an der Straßenfassade inschriftlich vermerkten Jahres 1483.

Bereits viel eher ist im Nordwesten des Gebäudes ein tonnengewölbter, annähernd quadratischer Raum entstanden, der sich in der Höhe seines Laufhorizonts deutlich von den übrigen Räumen im Erdgeschoss unterscheidet.

Die Errichtung des Fachwerks sowie weitere Veränderungen erfolgten in der ersten Hälfte des 18. Jahrhunderts. In der zweiten Hälfte des 19. Jahrhunderts fanden erneut Eingriffe im Innenraum und Umbauten an Fenster und Türen statt (Abb. 02). Das historische Gebäude vom Grundstück Kirchstraße 3 wurde 2010 umfangreich saniert. (Zum Baualtersplan siehe Abb. 03).

Die Putzritzungen³

Sal_Abb_04

Lokalisierung der Putzritzungen im nordöstlichen Gebäudebereich des Erdgeschosses

Lokalisierung

Die nachstehend beschriebenen Gestaltungselemente haben sich an der Nord- und Westwand des großen straßenseitigen Erdgeschossraums erhalten, der ehemals wohl mit Wandöffnungen (Wandschrank, Wandnische, Kamin) repräsentativ ausgestattet war (Abb. 04).

Datierung

Um 1483 oder früher

Im Bereich der Nordwand haben sich zudem auf der heute freigelegten Putzritzung noch geringe Reste einer farbigen, wohl rein ornamentalen Fassung aus der Zeit um 1522 erhalten.

Darstellung & Ikonografie

Nordwand

Polychrom gefasste, figürliche Putzritzungen mit drei szenischen Darstellungen in umlaufenden Rahmenlinien, deren Bestand durch Veränderungen der Sockelzone teilweise reduziert ist (Abb. 05).

Westwand

Rote Fassung der Ziegeloberfläche mit weißen Fugen über Fugenritzungen (Abb. 06).

Drei Szenen an der Nordwand präsentieren jeweils wohl dieselbe weibliche, gekrönte Person. Die lateinischen Beischriften auf Schriftbändern geben nähere Auskunft zu den Darstellungen, die sich auf das alttestamentliche Hohe Lied Salomos beziehen. Für alle drei Einzelszenen haben sich Vorlagen in einem Blockbuch erhalten, die als Vorbild dienten, in Salzelmen aber relativ frei umgesetzt wurden.

Westlicher Abschnitt (Abb. 07, 08, 09)

Von der westlichsten Darstellung hat sich nur die rechte Bildhälfte erhalten. Sie zeigt einen stehenden Engel mit einem Schlüssel, der die Pforte eines Mauerturms öffnet und mit seiner rechten Hand das Ende eines geschwungenen Schriftbandes hält. Fünfblättrige Blüten um ihn deuten eine Gartenlandschaft an. Doch befindet sich der eigentliche hortus conclusus innerhalb des Mauerrings. Dieser umschlossene Garten dient als Symbol für die Reinheit der Jungfrau Maria (Hoheslied 4,12). Links inmitten des Mauerrings ist in der verlorenen Bildmitte die bekrönte Maria, die jungfräuliche Mutter Christi, zu vermuten, von der sich nur der linke Arm und ein Teil der Krone erhalten haben. Nur unter dem westlichen Bildfeld blieb der untere Abschluss aus einem breiten Ornamentband mit einer Akanthusranke bestehen.¹⁰

Sal_Abb_07

Westlicher Abschnitt

Sal_Abb_08

Detail aus Abb. 07: Engel mit Schlüssel

Sal_Abb_09

Detail aus Abb. 07: Einzig heute erhaltener Befund am Übergang zur Sockelzone

Sal_Abb_10

Mittlerer Abschnitt

Sal_Abb_11

Detail aus Abb. 10: Christusfigur rechts

Sal_Abb_12

Detail aus Abb. 10: Weibliche Figur links

Mittlerer Abschnitt (Abb. 10, 11, 12)

Nach einem schmalen Feld mit Schriftband, das aufgrund der reduzierten Farbigkeit heute nicht mehr genauer gelesen werden kann, greift die gekrönte Maria mit ihrem rechten Arm über sich nach einer Frucht an einem Baum, wohl einem Apfel. Durch einen spitzen, runden Turm wird sie vom jugendlichen Christus mit schulterlangem Haar und Kreuznimbus getrennt, der mit seinem rechten Zeigefinger auf sich selbst weist. Kräftige Akanthusranken und kleine kugelartige Gebilde umspielen dabei alle freien Flächen. Breite Rahmen mit Doppellinien setzen das Bild von den beiden anderen ab.¹¹

Der Griff Marias nach der Baumfrucht und die möglicherweise dargestellte Schlange¹² kann als Verweis auf den Sündenfall interpretiert werden: Maria als neue Eva und Christus als neuer Adam überwinden dabei die Erbsünde der beiden Urmenschen und führen die Christen zum Heil.

Östlicher Abschnitt (Abb. 13, 14, 15, 16)

Auch im östlichen Bildfeld ist der Hintergrund mit Akanthusranken und kugelartigen Gebilden gefüllt. Während im Zentrum Maria als Königin auf einem mauerartig gestalteten Thron mit Turmpfosten sitzt, wird sie zu den Seiten von zwei Engeln eingefasst.

Links weist ein Engel mit bogenförmig geschwungenem Schriftband mit seiner rechten Hand auf die jugendliche Königin Maria. Diese hat ihre linke Hand nach oben weisend erhoben und deutet mit ihrer rechten Hand auf ihren Leib.

Der rechts die Szene abschließende Engel wird nach dem geschwungen schwebenden Schriftband greifend und mit der linken Hand in Richtung Maria deutend wiedergegeben. Maria kann als Königin der Engel (Regina Angelorum) verstanden werden, die von zwei Engeln als Thronassistenten begleitet wird. Mit dem Verweis auf ihren Leib, der ihren Sohn Christus gebären wird, und den zum Himmel erhobenen Zeigefinger gibt sie einen Hinweis auf die kommenden Ereignisse.¹³

Sal_Abb_13

Östlicher Abschnitt

Sal_Abb_14

Ausschnitt aus Blatt 22 eines Exemplars des Blockbuch „Canticum Canticorum“, Niederlande, ca. 1465

Sal_Abb_15

Detail aus Abb. 13: Türme der Thronarchitektur und vegetabile Gestaltung der Hintergründe

Sal_Abb_16

Detail der oberen Nordwand mit fragmentarisch erhaltenem Schriftband und Fragmenten der zweiten ornamentalen Fassung von um 1522

Kunsthistorische Einordnung

 

Bei der Ausmalung im Salzelmener Terminierhaus hat man sich für ein selten ausgesuchtes Thema entschieden, das dem alttestamentlichen Hohen Lied König Salomons entnommen ist. Dieses ist, wenn man dem Bibeltext genau folgt, ist ein Liebeslied, das aber auch auf Maria umgedeutet werden kann. Zahlreiche mariologische Motive wie der hortus conclusus finden sich in der Blockbuch-Vorlage Canticum Canticorum, in der einzelne Verse des Hohenliedes sich teilweise durcheinander verbildlicht aneinanderreihen (Abb. 14).¹⁴ Ob neben den drei verwendeten Bildvorlagen ehemals noch weitere Abbildungen vorhanden waren, und warum man gerade diese Motive verwendet hat, lässt sich nicht mehr klären.

Was die verwendete Technik betrifft, so lässt sich diese nur mit wenigen erhaltenen Beispielen des 15. und frühen 16. Jahrhunderts vergleichen.¹⁵ Im Gegensatz zu den älteren Putzritzungen von Magdeburg (Dom, Ostflügel und St. Johannis) wird hier die in den Innenraum versetzte Darstellung bereichert zu einer mehrfarbigen Kratzputzdekoration mit biblisch-mariologischem Inhalt.

Herstellungstechniken¹⁶

Als Verputz diente ein vermutlich latent hydraulischer Kalkputz mit hoher innerer Festigkeit bei gleichzeitiger geringer Bindung. Er wurde im Bereich der Nordwand in drei horizontalen Putzportionen aufgetragen und eingeglättet (Abb. 17). Für die erste Anlage der Komposition wurde eine Vorzeichnung mit einem Kohlestift erstellt (Abb. 18, 19). Diese hinterließ teils feine Rillen. Anschließend erfolgte die Anlage der Konturen durch stärkeres Einritzen in den Putz. Die Hintergründe wurden großflächig aufgeraut (Abb. 20, 21). In beiden Fällen kommt es zu deutlichen Abweichungen von den Vorgaben der Vorzeichnung (Abb. 22, 23).

Die Fassung der Oberflächen erfolgte in einer Mischtechnik. Zu den freskal eingebundenen Abschnitten zählt z.B. das schwarze Schriftband (Abb. 16, 21). Bei der farbigen Ausgestaltung der übrigen Dekoration kam, nach Analysen im Jahr 2000 entsprechend, wohl Kalk mit Zusatz eines proteinischen Bindemittels zum Einsatz. Hierbei wurden die optisch vorn liegenden Bereiche mit rotem Ocker in unterschiedlichen Schattierungen und die Hintergründe mit Azurit in hellem Blau (heute zu Grün umgewandelt) gestaltet (Abb. 20). Auf den Rahmungen der Bildfelder fanden sich außerdem orangerote Begleitstriche aus Mennige auf einer weißen Grundierung. Als letzter Arbeitsschritt wurden die Konturen und Teile der Binnenzeichnungen mit einem hämatithaltigen Dunkelrot nachgezogen (Abb. 19-21).¹⁷

Sal_Abb_17

Detail des mittleren Abschnitts mit Werkspuren der Putzglättung

Sal_Abb_18

Detail der linken Figur aus Abb. 07 mit grauschwarzen Vorzeichnungen, die teils flache Rillen erzeugt haben

Sal_Abb_19

Detail des Schlüssels in Abb. 07 mit grauschwarzen Vorzeichnungen, die teils flache Rillen und teils Ritzungen erzeugt haben sowie eine senkrechte Angabe der Außenkante der Architektur, die durch die Hand verläuft und frisch in den Putz eingearbeitet wurde (weiche Kanten). Die spätere Kontur deckt sich häufig nicht mit der Vorzeichnung

Sal_Abb_20

Detail des Hintergrundes in Abb. 07 mit vergrünter, ursprünglich hellblauer Farbigkeit und dunkelroten Konturen. Die Oberfläche der Rücklagen wurde aufgeraut

Sal_Abb_21

Detail des Schriftbandes in Abb. 07 mit freskal eingebundenen Schriftzeichen sowie deutlich abweichenden Konturen und Binnengliederungen bei der Erstellung der Vorzeichnung und der abschließenden Ausführung der Darstellung

Sal_Abb_22

Detail aus Abb. 10 mit dem Kopf der männlichen Figur. Die sich überlagernden, grafischen Elemente von Vorzeichnung, Binnengliederung und Schattierung sowie die gekratzten, ursprünglich hellblauen, heute vergrünten Rücklagen sind heute bildprägend

Sal_Abb_23

Detail des Gewandes im westlichen Abschnitt mit Faltenwurf, Vorzeichnung, Konturritzung, Perspektivlinien und Schattenschraffur sowie deutlich aufgeraute Rücklagenflächen

Zustand

Die Putzritzung befindet sich substanziell in einem sehr guten Zustand.

Restaurierungsgeschichte

1989/1999
Entdeckung und Freilegung durch Restaurator Eckhard Lemcke, Schönebeck, im Zuge von Umbaumaßnahmen ¹⁸

2000
Voruntersuchung, Konservierung und Restaurierung der Putzritzungen durch Dipl.-Rest. Stephanie Fischer, Schildow ¹⁹

Hinweis für Besucher

Besichtigung während der normalen Bürozeiten (Mo-Fr, besonders Mittwochs) nach telefonischer Anmeldung (Tel. 03928-76020), Beerdigungsinstitut Wunneburg, Kirchstr. 3 neben der Stadtkirche St. Johannis Baptist.