Hamersleben
Stiftskirche St. Pankratius
Das Gebäude
Baubeschreibung¹
Im nördlichen Teil des Dorfes, im alten Ortskern von Hamersleben, liegt das ehemalige Augustiner-Chorherrnstift mit seiner Stiftskirche St. Pankratius (Abb. 01). Aus der Stiftungsurkunde von 1112 geht hervor, dass die Augustiner-Chorherren seit dem Jahr 1111 Hamersleben besiedelt haben.² Im Jahr 1804 ist der Stiftsbesitz säkularisiert worden.
Die Stiftskirche in Hamersleben ist eine dreischiffige kreuzförmige Basilika mit Chorjoch und Apsis. Die Seitenschiffe münden in tonnengewölbte Nebenchöre und schließen ostwärts ebenfalls mit einer Apis. Die Kirche endet im Westen mit einem einfachen zweischaligem Mauerwerk ohne Westturm. Der Steinbau besteht aus auffallend großen und exakt bearbeiteten Sandsteinquadern.
An die Querhäuser und die Vierung schließt sich nach Osten hin das dreiteilige Sanktuarium an. Das Mittelschiff verläuft mit seinem aus Werkstein gemauerten Obergaden ohne Unterbrechung bis an den geraden Mauerabschluss des Ostgiebels (Abb. 02). Dort bindet die Apsis als vermutlich einstiger Ort des Hauptaltares an das Gebäude an.³
Aus der Barockzeit sind die monumentale Altarwand, die Orgel und ein Teil der hölzernen Apostelskulpturen überliefert. Der Innenraum ist heute durch die historisierenden Umbauten im 19. Jahrhundert geprägt (Abb. 03, 04, 05).⁴
Ham_Abb_03
Historische Ansicht in Chor und Vierungsraum noch mit gotischen Holzgewölben vor der Purifizierung des 19. Jahrhunderts
Bauphasen und Umbauzeiten
Aufgrund der dendrochronologischen Untersuchung bauzeitlicher Holzfragmente wie Mauerlatten und Dachsparren sowie von Fragmenten eines bauzeitlichen Fensters ließ sich die Bauzeit der Kirche auf 1125 bis 1135 eingrenzen.⁵
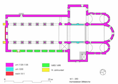
Eine größere Umbauphase gab es im beginnenden 16. Jahrhundert. Die Querhäuser und das Langhaus erhielten neue Dachwerke. Gleichzeitig entstanden über diesen Raumabschnitten Holzrippengewölbe. Als Fälljahr der Eichenhölzer vom Dachwerk des Lang- und Querhauses konnte die Zeit um 1510 ermittelt werden, so dass von einem Einbau um 1511 gemeinsam mit dem Holzgewölbe ausgegangen werden kann. Gleichzeitig wurde die mittelschiffbreite Vorhalle an der Westfassade abgerissen und man baute drei Maßwerkfenster ein. Im letzten Viertel des 17. Jahrhunderts wurde der Innenraum verändert. Nach dem Abriss des Lettners errichtete man in der Hauptapsis eine Altarwand. Das Chorgestühl, zwölf Apostel als lebensgroße Apostelfiguren aus Holz sowie die Orgel kamen als Ausstattungsstücke hinzu. In dieser Zeit wurde ein Teil der Seitenschiffwand zwischen Westabschluss und Querhaus mit historischen Sandsteinen vollständig neu aufgemauert. Im 19. Jahrhundert gab es weitere Veränderungen wie den Rückbau des gotischen Rippengewölbes und die Konsolidierung der Westfassade durch zwei Strebepfeiler. Zum Baualtersplan siehe Abb. 06.
Die Wandmalerei
Ham_Abb_07
Lokalisierung der Wandmalereien hinter dem barocken Altar
Lokalisierung
Wand- und Gewölbeflächen der Hauptapsis hinter der barocken Altarwand (Abb. 07).
Datierung
Spätgotisch, ca. zwischen um 1500 und 1512⁶
Darstellung & Ikonografie
Heute durch den barocken Retabelaltar von 1687 verdeckt, hat sich die Ausmalung der Chorapsis in der oberen Hälfte weitgehend erhalten. Über ein hinter dem Altar errichtetes Holzgerüst lässt sich die Malerei aus der Nähe betrachten. Es handelt sich um figürliche Darstellungen in zwei horizontalen Registern (Abb. 08, 09).
Zuoberst in der Apsiskalotte:
Die monumentale Darstellung des Weltgerichtes
Unterhalb in der Fensterzone:
4 Heiligenfiguren, die in aufgemalten Tabernakelarchitekturen eingestellt sind
Apsiskalotte
Die Darstellung des Jüngsten Gerichts ist im oberen Bildbereich mit dem zentralen Christus als Weltenrichter wiedergegeben. Der vom Tode siegreich auferstandene Christus mit goldenem Scheibennimbus sitzt dabei mit blankem Oberkörper frontal auf einem Thron, gekleidet in einen roten Mantel mit goldener Schließe, unter seinen Füßen ist die Weltkugel zu sehen (Abb. 08). Neben der gut sichtbaren Seitenwunde weisen auch die erhobenen Hände ihre Wundmale vor, die rechte Hand ist dabei zum Segensgestus geformt. Von seinem Mund gehen eine weiße Lilie und ein Schwert aus. Seitlich neben dem Thron knien mit anbetend erhobenen Händen Christi Mutter Maria in einer rötlichen Tunika mit blauem Mantel und der asketische Johannes der Täufer mit Fellkleid und grünem Mantel. Ihre Blicke sind zu Christus erhoben und um ihre Köpfe sind goldene Scheibennimben zu erkennen. Die Anordnung der beiden Fürbitter, die mit Christus ein Dreieck bilden, gibt das zentrale Motiv des Weltgerichts wieder⁷. Beidseits angeordnet und etwas kleiner geben zwei Gruppen von dicht gedrängten Heiligen das Apostelkollegium als Beisitzer zum Gericht wieder. Zwei über Christus die Posaune zum Gericht blasende Engel sowie stark bewegte Schriftbänder ergänzen die himmlische Szene.⁸ Zu den Füßen der Dargestellten entsteigen, bildperspektivisch deutlich verkleinert, zahlreiche nackte Tote aus ihren Gräbern. Am unteren Rand der Darstellung weist ein bekleideter Engel die Gruppe der Seligen nach links, rechts lenken kleine teufelartige Wesen die Verdammten in Richtung des nicht erhaltenen Höllenschlundes. Unter den Gesegneten kniet anbetend der Stifter des Wandbildes im weißen Chorgewand mit schwarzem Rauchmantel (Abb. 09).
Wandfläche zwischen den Fenstern
Unterhalb der Darstellung des Jüngsten Gerichts, neben und zwischen den Fenstern folgen vier in kostbare Gewänder gekleidete Heilige in aufwendig gestalteten Tabernakeln mit Kielbogenabschlüssen (Abb. 09). Links beginnend ist der Erzmärtyrer Stephanus als Diakon mit Palmwedel und seinen Attributen, drei Steine auf einem geschlossenen Buch, zu sehen, daneben der Kirchenpatron Pankratius als jugendlicher Ritter mit Schild und Lanze (Abb. 10). Ihnen folgen nach rechts der Ordensheilige Augustinus als Bischof mit einem von zwei Pfeilen durchbohrten Herz als Symbol der göttlichen Liebe und Laurentius als Diakon mit seinen Attributen Buch und Rost (Abb. 11).
Ham_Abb_09
Entzerrte Gesamtansicht auf die mittelalterlichen Wandmalereien im Bereich der aufgehenden Wandflächen in der Apsis
Kunsthistorische Einordnung
Die Ausmalung der Chorapsis teilt sich nicht nur in die Darstellung des Jüngsten Gerichts und die vier einzelnen Heiligen darunter. Es dürften auch zwei Maler tätig gewesen sein. Das Jüngste Gericht gibt sich ganz traditionell, wobei bestimmte Handhaltungen eventuell auf Südwestdeutschland (Oberrhein, Bodenseeregion) verweisen könnten. Die Gesichter sind zwar präzise ausgeführt, wirken aber eher puppenhaft. Die vier Heiligen dagegen erscheinen lebendig in ihrer malerischen Qualität und belegen, dass hier der deutlich fortschrittlichere Maler tätig war, dessen Werk trotz der spätgotischen Architekturformen bereits die Renaissance mit ersten perspektivischen Ansätzen einläutet.⁹
Bestand und Maltechnik¹⁰
Auf den romanischen Mauerwerksoberflächen der Hauptapsis haben sich keine romanischen Putze und/oder Fassungsschichten mehr erhalten.¹¹ Um 1200 wurden mit der Entstehung der plastischen Dekoration an den Chorschranken die Sockelprofile an den Stirnseiten der Apsis ebenfalls mit Hochbrandgips profilierend überformt.¹² In der gleichen Ebene hat sich auf der Bogenlaibung der Apsis die konstruktive Vorzeichnung sowie flächige, gelbe und rote Unterlegung eines geometrischen Frieses erhalten, für das scheinbar ein Zirkelinstrument verwendet wurde (Abb. 12).
Die Entstehung der figürlichen Wandmalerei geht mit dem Auftrag eines gelblich weißen Kalkmörtels einher. Der Putz wurde in Portionen je Gerüstetage von oben nach unten aufgetragen und mit der Kelle geglättet. Die Putzoberfläche erhielt vermutlich im noch frischen Zustand eine erste Beschichtung durch eine gelblich weiße Tünche.¹³
Die Ausführung der Malerei erfolgte nach Auftrag einer schichtstarken weißen Kalktünche. Sie wurde derart satt aufgetragen, dass sich Läufer gebildet haben (Abb. 13).¹⁴ Zur ersten Anlage der Komposition wurde eine Vorzeichnung in Rot und korrigierend in Schwarz ausgeführt (Abb. 14-16). Größere Binnenflächen wurden mit einem untermalenden Farbton belegt. So zeigen beispielsweise die landschaftlich gestalteten Hintergründe eine ockergelbe Untermalung.¹⁵
Die Ausführung der bildgebenden Malschicht erfolgt in Secco-Technik. Vermutlich handelt es sich um eine fette Temperamalerei, die mehrschichtig aufgebaut und teils alla prima ausgeführt wurde.¹⁶ Es lassen sich anhand des Grades an Detailliertheit und Feinteiligkeit der Malweise unterschiedlich hohe Ausführungsqualitäten des Dargestellten feststellen (Abb. 17-23). Details wie die Heiligenscheine, die Mantelschließe Christi oder Attribute der Heiligen zwischen den Fenstern wurden zusätzlich durch Metallauflagen vergütet. Vermutlich handelt es sich hier um eine Ölvergoldung.¹⁷ Alle Flächen sind zusätzlich durch aufgesetzte Binnengliederungen sowie die Vergoldungen durch farbige Lasuren gestaltet, die deren plastische Wirkung erhöhen (Abb. 24-29).
Abschließend wurden vor allem die figürlichen Darstellungen mit einer selten roten, meist schwarzen Kontur nochmals präzisiert und teilweise korrigiert (Abb. 14, 17, 27, 30).
Ham_Abb_12
Triumphbogenscheitel mit erhaltenen Fragmenten der Vorzeichnung einer älterer Bemalung, vermutlich um 1240
Ham_Abb_13
Detail aus der Architekturmalerei im Bereich des Übergangs von Kalotte zu aufgehender Wandfläche. Die fette, stark streifige Kalktünche zeigt zahlreiche Läufer.
Ham_Abb_14
Detail einer Figur, die aus ihrem Grab steigt, mit sichtbarer Vorzeichnung in Rot und anschließender Präzisierung der Anatomie in schwarz.
Ham_Abb_15
Darstellung zweier Figuren, die ihrem Grab entsteigen. Die Figuren wirken in Körperhaltung und Physiognomie etwas ungelenker und malerisch freier entwickelt.
Ham_Abb_16
Detail aus Abb. 15. In der Anlage der Komposition war die vollständige Ausformung des Beines vorgesehen, die in der Ausführung durch den grünen Landschaftsfarbton überdeckt wurde. Alterungsbedingte Haftungsverluste der Malschicht haben zur erneuten Freilegung der Vorzeichnungslinie geführt.
Ham_Abb_19
Darstellung zweier Figuren in der Gruppe der der Auferstehenden. Die Figuren der Teufel (vorn) wirken in Körperhaltung und Physiognomie etwas ungelenker und zeigen bisweilen groteske Gesichtszüge, während die menschlichen Figuren (hinten) sehr individuell und nah am naturalistischen Vorbild gearbeitet wurden.
Ham_Abb_20
Detail des Hintergrundes zum Jüngsten Gericht mit Darstellung einer Pflanze, die im Wesentlichen aus Licht- und Schattenton vor grüner Fondfläche gebildet wird. Insbesondere die Landschaft weist typische Merkmale einer Öl- bzw. fetten Temperatechnik auf.
Ham_Abb_23
Detail des Himmels hinter der Christusdarstellung. Die Sterne stellen sich aktuell in brauner bis schwarzer Farbigkeit dar, welche wahrscheinlich infolge einer Pigmentveränderung entstanden ist. Es könnte sich hierbei um eine Ausführung mit den Pigmenten Blei-Zinn-Gelb, Mennige bzw. Zinnober (Rot) handeln.²³
Ham_Abb_24
Christusdarstellung in der Apsiskalotte. Die Schließe am Mantel und der Heiligenschein wurden als Ölvergoldung mit schwarzer und weißer Binnenzeichnung ausgeführt.
Ham_Abb_25
Detail der Abb. 24. Die Schließe am Mantel zeigt einen illusionistisch eingefassten Edelstein, der offensichtlich mit einer dünnen grünlich blauen Lasur beschichtet war, die möglicherweise ehemals im Stil eines Lüsters wirkte.
Ham_Abb_26
Detail des Heiligenscheins von Johannes dem Täufer. Die Kontur wurde zu Beginn ritzend vorgegeben. Die Malschicht ist von zahlreichen Lockerungen geprägt
Ham_Abb_27
Detail der Mariendarstellung mit schwarzen und weißen Binnengliederungen im Heiligenschein, die als Licht und Schatten wirken. Im Gesicht überlagern sich heute rote und schwarze Vorzeichnungen und abschließende Konturierungen.
Ham_Abb_28
Detail des Heiligen Pankratius. Der Hintergrund der Figur sowie Teile der Gewänder der hier dargestellten Heiligen zeigen Binnenmuster im Stil einer Brokatimitation. Dies erhöht die naturalistische Wirkung und Stofflichkeit der Figurendarstellung.
Ham_Abb_29
Detail des Gewandsaums des Heiligen Stephanus, Brokatmuster des Gewandes und plastisch ausformulierte Borte
Zustand
Diverse Schadensursachen auf baulicher und anthropogener Ebene haben zu einem fortschreitenden Verfall und Verlust der Fassungssubstanz und ihrer Bildinformation geführt (Abb. 14, 26, 31-33). Als wesentliche substanzschädigende und schadbildbegünstigende Prozesse sind zu nennen: Die stark ausgeprägten Risssysteme, das Vorliegen bauschädlicher Salze, der Totalverlust und die daran angrenzende Destabilisierung des Putz- und Fassungsgefüges im Zuge der defekten Dachhaut und Fenster sowie die Folgeerscheinungen des massiven Eintrags von kunststoffhaltigen Festigungsmitteln im Zuge der Restaurierungsmaßnahmen 1973/1974. Hinzu kommen Entfestigungen der Malschicht und ästhetisch stark störende Weißschleier.¹⁸ Eine zeitnahe umfassende Konservierung des Wandmalereibestandes ist angezeigt.
Ham_Abb_14
Detail einer Figur, die aus ihrem Grab steigt, mit sichtbarer Vorzeichnung in Rot und anschließender Präzisierung der Anatomie in schwarz.
Ham_Abb_16
Detail aus Abb. 15. In der Anlage der Komposition war die vollständige Ausformung des Beines vorgesehen, die in der Ausführung durch den grünen Landschaftsfarbton überdeckt wurde. Alterungsbedingte Haftungsverluste der Malschicht haben zur erneuten Freilegung der Vorzeichnungslinie geführt.
Ham_Abb_31
Bereich des südlichen Übergangs der Kalotte zu aufgehender Wandfläche und Triumphbogen, exemplarisches Beispiel zum Zustand der Putze und Fassungen (Hohlstellen, Risse, Substanzverluste)
Restaurierungsgeschichte
2. H. 19. Jh.
Vermutlich Freilegung der Wandmalereien¹⁹
Ab 1963
Gesamtinstandsetzung der Kirche und Konservierung der Wandmalereien durch das Institut für Denkmalpflege Halle (Saale)²⁰
1973-1974
Restaurierung der Wandmalereien durch das Institut für Denkmalpflege Halle (Saale)²¹
2008-2010
Bestands- und Zustandserfassung zunächst durch das Landesamt für Denkmalpflege und Archäologie Sachsen-Anhalt, in der Folge fortführend durch die Hochschule für Angewandte Wissenschaft und Kunst Hildesheim, Fakultät K Wandmalerei/Architekturoberflächen²²